210 60th Ave N, North Myrtle Beach, SC 29582
Toggle Navigation
Images
Videos
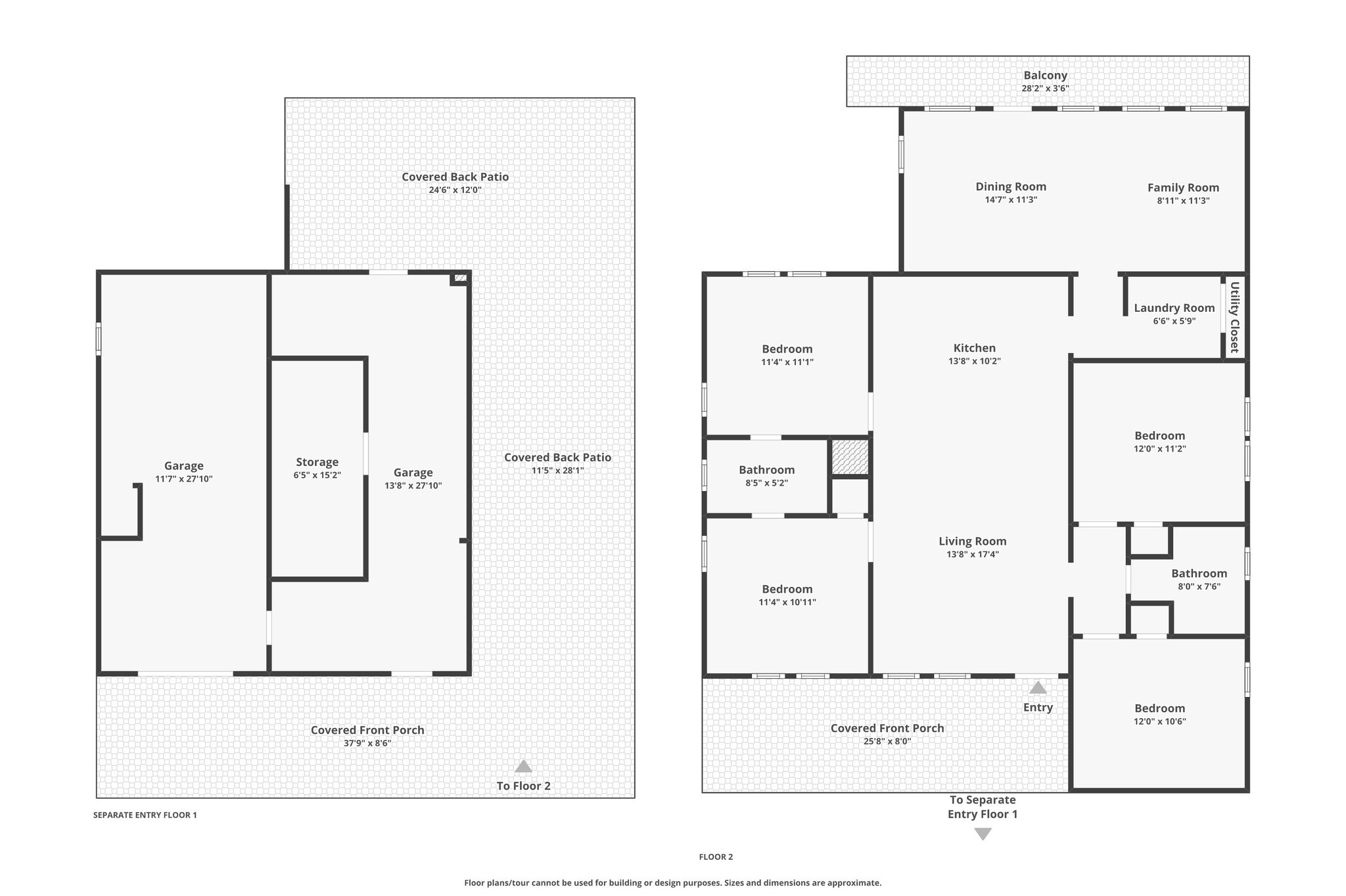
Floor Plans
3D Tour
Map
Previous Photo
Next Photo
Images
Slideshow
Photo Grid
Hide
Previous
Next
Show more
Videos
Floor Plans
Slideshow
Photo Grid
Hide
Previous
Next
3D Tour